
【 マンション 】1K 賃料84,000円~103,000円 管理費等0円~10,000円
| 最寄駅 | 所在地 | 間取り | 面積 | 築年月 | 賃料 管理費等 | 敷金 礼金 |
|---|---|---|---|---|---|---|
東京メトロ副都心線「東新宿駅」 徒歩 4分 | 東京都新宿区大久保2-11-26 | 1K | 20.06㎡ | 2006年11月 | 100,000円 10,000円 |
- - |
東新宿エリアの分譲マンション、プレール・ドゥーク東新宿☆
使いやすい間取りの1Kタイプが魅力的です☆
☆初期費用カード決済OK☆仲介手数料最大無料でご案内致します☆
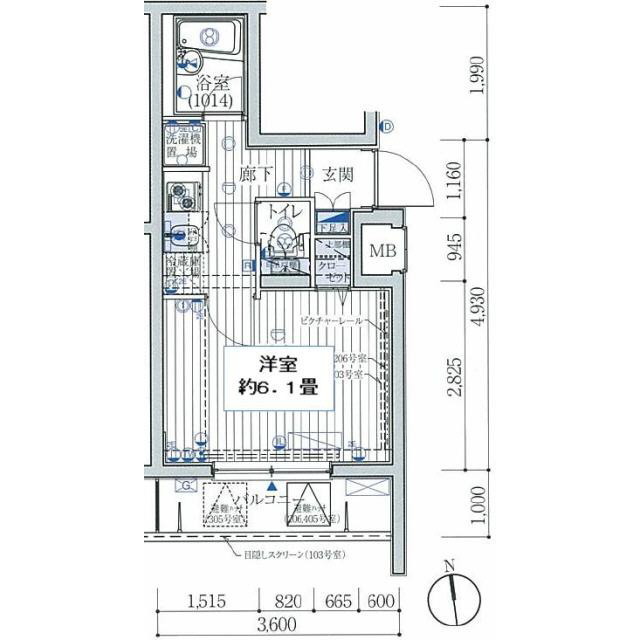
物件写真・間取り
物件概要
| 物件名 | プレール・ドゥーク東新宿 |
|---|
| 交通機関 | 東京メトロ副都心線「東新宿駅」 徒歩 4分 都営大江戸線「東新宿駅」 徒歩 4分 JR山手線「新大久保駅」 徒歩 10分 |
|---|
| 間取り詳細 | 洋室6.5帖 |
|---|
| 建物構造 | RC |
|---|
| 所在階 / 階数 | 2階/4階建 |
|---|
| 主要採光面 | 東側 |
|---|
| 契約期間 | 2年間 |
|---|
| 引渡 | 相談 |
|---|
| 設備・条件 | オートロック, 宅配ボックス, インターネット接続可, 管理人, 駐輪場, 敷地内ゴミ置場, 分譲賃貸, 防犯カメラ, CATV, CS, BS |
|---|
| 備考 | ※設備・募集条件はお部屋により異なる場合もございます。詳しくはお問い合わせ下さい。 |
|---|
| 取引態様 | 媒介 |
|---|
| 物件番号 | 0047 |
|---|










